Back to our properties

The Crawley retirement homes in the Cotswolds

A spacious and welcoming two-bedroom apartment with plenty of natural light.

Prices from £455,000*

2 bedrooms

3 available

Images are for illustration purposes only.

The Crawley

Prices from £455,000* / Essentials rent from £3,410 pcm

A two-bedroom apartment with bathroom, separate en-suite, living room, kitchen, utility cupboard and private balcony, measuring 883.7 sqft (82.1 sqm).

Available to rent, buy or part buy, part rent.

*Please note that other charges apply. Find out more.

Key Features

  • Fitted kitchen with integrated NEFF cooking appliances
  • Bathroom featuring level access walk-in shower with integral shower seat
  • Double-glazed windows
  • Broadband & satellite TV connections
  • Home automation system
  • On-site call system
  • Integrated fire alarm system

Virtual Tour

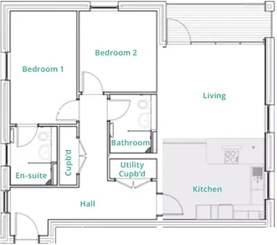
Floorplan

Crawley Floorplan
  m ft
Living Room 4.20 x 3.90 13'9" x 12'10"
Kitchen 3.45 x 3.30 11'4" x 10'10"
Bedroom 1 4.15 x 3.40 13'7" x 11'2"
En-suite 2.90 x 1.90 9'6" x 6'3"
Bedroom 2 3.30 x 3.05 10'10" x 10'0"
Bathroom 2.35 x 1.90 7'9" x 6'3"
Total 82.1 sqm 883.7 sqft

Specification

Beechwood Park Apartment 5

Contemporary fitted kitchen

Stylish, fitted kitchen, designed with accessibility in mind to make life easy and comfortable for you. Your contemporary kitchen is fitted with a wide range of easy-to-use, integrated appliances, including a slide and hide fan-assisted oven with grill, four-ring hob, full height fridge/freezer, microwave, slimline dishwasher and auto sense extractor fan. All appliances are A energy rated.

Beechwood Park Apartment 1

Spacious living areas

Light and roomy bedroom and living areas, featuring Oak skirting and architraves, fitted carpets, pendant lighting, chrome sockets and switches, underfloor heating and a state of the art wall-mounted touch screen automation system to manage your heating and lighting. Telephone connection points to the bedrooms and living room, with optional connectivity to Sky and open fibre networks.

Beechwood Park Private Balcony

Private balcony

A spacious, private balcony allows you to make the most of the outdoors. It's the perfect place to relax and take in the views. Plus, at Beechwood Park you'll enjoy plenty of beautiful, landscaped communal gardens and an exercise trail.

Book a viewing

To arrange a viewing or book a virtual appointment by video call, please complete the form below or contact our friendly team on 01451 885494. Our opening hours are Monday to Friday 10am-5pm, and Saturday and Sunday 10.30am-4pm

Enter your number without any spaces
If you would like to book a viewing, please tell us your preferred date and time below. For virtual appointments, please also tell us which video calling app you would prefer to use (eg Zoom, Facetime, Skype, WhatsApp).
We'd love to keep in touch * By submitting this form, you agree to us contacting you. We’d also like to keep in touch by email and SMS with offers, information and to hear about your experience with us so far. We’ll keep your data safe, and you can withdraw your consent at any time.

For more information, please see our privacy policy.