Back to our properties

The Wells retirement homes in the Cotswolds

A spacious and welcoming two-bedroom apartment with plenty of natural light.

Prices from £432,000*

2 bedrooms

5 available

Images are for illustration purposes only.

The Wells

Prices from £432,000* / Essentials rent from £3,280 pcm

A spacious and welcoming two-bedroom apartment with plenty of natural light. Set within our beautiful, leafy community at Beechwood Park, this modern home features a spacious living room, kitchen, bathroom and private balcony, plus plenty of in-home storage space.

From the handcrafted stone-fronted exterior, to the lovingly designed landscaped grounds, all our homes have been carefully designed to complement the unique surroundings of Stow-on-the-Wold and add to the overall character of the town.

Available to rent, buy or part buy, part rent.

*Please note that other charges apply. Find out more.

Key Features

  • Spacious 856.8 sqft home
  • Beautiful, modern design
  • Private balcony
  • Contemporary kitchen and bathroom fittings
  • Plenty of storage space
  • Home automation system
  • On-site call system
  • 24/7 care and support available from our friendly on-site care team
  • Set within a caring age-exclusive community

Virtual Tour

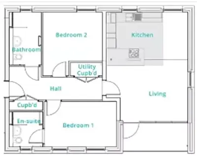
Floorplan

  m ft
Living Room 5.00 x 3.70 16'5" x 12'2"
Kitchen 5.00 x 2.85 16'5" x 9'4"
Bedroom 1 3.50 x 2.90 11'6" x 9'6"
Bedroom 2 4.40 x 2.65 14'5" x 8'8"
En-suite 2.10 x 1.70 6'10" x 5'7"
Bathroom 2.95 x 1.88 9'8" x 6'2"
Total 79.6 sqm 856.8 sqft

Specification

Itm0849 Hr

Contemporary fitted kitchen

Stylish, fitted kitchen, designed with accessibility in mind to make life easy and comfortable for you. Your contemporary kitchen is fitted with a wide range of easy-to-use, integrated appliances, including a slide and hide fan-assisted oven with grill, four-ring hob, full height fridge/freezer, microwave, slimline dishwasher and auto sense extractor fan. All appliances are A energy rated.

Itm0861hr

Spacious living areas

Light and roomy bedroom and living areas, featuring Oak skirting and architraves, fitted carpets, pendant lighting, chrome sockets and switches, underfloor heating and a state of the art wall-mounted touch screen automation system to manage your heating and lighting. Telephone connection points to the bedrooms and living room, with optional connectivity to Sky and open fibre networks.

Langley Balcony

Private balcony

A spacious, private balcony allows you to make the most of the outdoors. It's the perfect place to relax and take in the views. Plus, at Beechwood Park you'll enjoy plenty of beautiful, landscaped communal gardens and an exercise trail.

Activities & events

Lifestyle Activities

Our dedicated team at Beechwood Park organise a varied programme of activities and events each week, most of which are at no extra cost.

Each week, you'll discover a range of exciting activities and events that you can get involved with. Here are just some examples of the activities on offer:

  • Fitness and wellbeing classes, including walking groups
  • Games Afternoons
  • Cheese & wine evening
  • Digital club
  • A wide variety of trips, tours and excursions
  • Film and music club
  • ...and much more!

Care & support

Care Support

At Beechwood Park, we'll tailor a care package to suit the level of care and support you need, if and when you need it. Support available includes: 

  • Personal care
    Help getting in and out of bed, washing, bathing, dressing and maintaining personal appearance.
  • Health & wellbeing
    Supervision of medication if required. We can also come along to appointments and provide short-term care during illness or recuperation.
  • Meals
    Meals and drinks provided throughout the day, or just at certain times.
  • Housework
    Support with cleaning, laundry, ironing, bills, paperwork and odd jobs.

Book a viewing

To arrange a viewing or book a virtual appointment by video call, please complete the form below or contact our friendly team on 01451 885494. Our opening hours are Monday to Friday 10am-5pm, and Saturday and Sunday 10.30am-4pm

Enter your number without any spaces
If you would like to book a viewing, please tell us your preferred date and time below. For virtual appointments, please also tell us which video calling app you would prefer to use (eg Zoom, Facetime, Skype, WhatsApp).
We'd love to keep in touch * By submitting this form, you agree to us contacting you. We’d also like to keep in touch by email and SMS with offers, information and to hear about your experience with us so far. We’ll keep your data safe, and you can withdraw your consent at any time.

For more information, please see our privacy policy.