The Denison retirement homes in South London
A spacious and welcoming one-bedroom apartment with plenty of natural light.
Prices from £304,000*
1 bedroom
2 available
Images are for illustration purposes only.
The Denison
Prices from £304,000* / Essentials rent from £2,371 pcm
A spacious and welcoming one-bedroom apartment with plenty of natural light. Set within the vibrant community at Button House in Hackbridge, this modern home features a roomy living/dining area, kitchen, en-suite bathroom and private balcony, plus plenty of in-home storage space.
Also available to rent or part buy, part rent.
*Please note, that other charges apply. Find out more.
Key Features
- Spacious 639 sqft home
- Beautiful, modern design
- Level access
- Lift access to all apartments
- Private balcony
- Contemporary kitchen and bathroom fittings
- Plenty of storage space
- Video door entry system
- On-site call system
- Care and support available
- Set within a caring community exclusively for over-55s
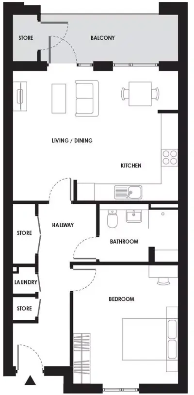
Floorplan
| m | ft | |
| Living Room | 5.65 x 4.43 | 18'6" x 14'6" |
| Kitchen | 3.47 x 3.00 | 11'4" x 9'9" |
| Bedroom | 3.59 x 4.08 | 11'8" x 13'4" |
| Bathroom | 2.70 x 2.00 | 8'9" x 6'6" |
| Total | 59.4 sqm | 639 sqft |
Specification
Contemporary fitted kitchen
Stylish, fitted kitchen, designed with accessibility in mind to make life easy and comfortable for you. Your contemporary kitchen is fitted with a wide range of easy-to-use, appliances, including a Zanussi fan-assisted oven, four-ring hob and fridge/freezer. All appliances are A energy rated.
Spacious living areas
Light and roomy bedroom and living areas, featuring fitted carpets, pendant lighting, chrome sockets and switches, plus telephone and data sockets with optional connectivity to Sky and open fibre networks. Warm and welcoming, your living areas offer a quality and comfort that you'll love. Plus, there's plenty of in-home storage so you can maximise your living space.
Private balcony
A spacious, private balcony with plenty of storage, so you can make the most of this outdoor space. It's the perfect place to relax outdoors and take in the views. Plus, all balconies are sheltered so you can enjoy your own outdoor space, whatever the weather!
Activities & events
Our dedicated team at Button House organise a varied programme of activities and events each week, many of which are covered within your fee - so there's no extra cost.
Each week, you'll discover a range of exciting activities and events that you can get involved with. Here are just some of the activities on offer:
Fitness and wellbeing classes, including yoga and Pilates
Cookery classes
Cocktail masterclass
Digital club
A wide variety of trips, tours and excursions
Film and music club
...and much more!
Lifestyle support
At Button House, a range of lifestyle support services are available, including:
- Cleaning
Vacuuming, dusting, cleaning and interior window cleaning. - Laundry
Washing, drying and ironing laundry. - Dog walking
Taking your dog for a walk as required, so you can enjoy time to yourself. - Pet sitting
For cats, birds or fish that are accustomed to being left whilst you’re away. - Customer assistance
Support with paying bills and household paperwork, plus IT support and advice.
Speak to a member of our team for further information and prices.
Book a viewing
To arrange a viewing or book a virtual appointment by video call, please complete the form below or contact our friendly team on 0208 773 2838. Our opening hours are Tuesday to Friday 10am-4pm, Saturday 10.30am-4pm, and Sunday to Monday by appointment.