Back to our properties

The Havelock retirement homes in South London

A spacious two-bedroom apartment with plenty of natural light.

Prices from £391,875*

2 bedrooms

6 available

Images are for illustration purposes only.

The Havelock

Prices from £391,875* / Essentials rent from £2,956 pcm

A spacious two-bedroom apartment with plenty of natural light. Set within the vibrant, welcoming community at Button House in Hackbridge, this modern home features a roomy kitchen and living/dining area leading to a private balcony, en-suite bathroom and plenty of in-home storage space.

Also available to rent or part buy, part rent.

*Please note, that other charges apply. Find out more.

Key Features

  • Spacious 788 sqft home
  • Beautiful, modern design
  • Private balcony
  • Contemporary kitchen and bathroom fittings
  • Plenty of storage space
  • Video door entry system
  • On-site call system
  • Care and support available
  • Set within a caring community exclusively for over-55s

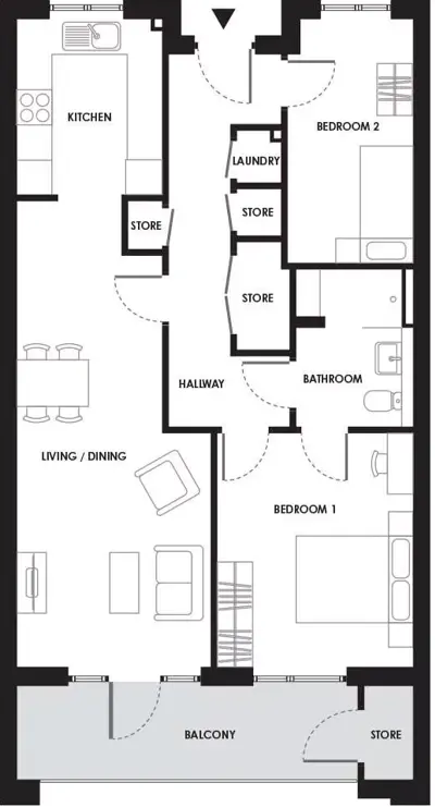
Floorplan

  m ft
Living Room 3.30 x 8.20 10'9" x 26'10"
Kitchen 2.48 x 3.00 8'1" x 9'9"
Bedroom 1 3.35 x 4.14 10'10" x 13'6"
Bedroom 2 2.15 x 4.30 7'0" x 14'1"
Bathroom 2.00 x 2.70 6'6" x 8'9"
Total 73.2 sqm 788 sqft

Specification

Hackbridge Gallery 06

Contemporary fitted kitchen

Stylish, fitted kitchen, designed with accessibility in mind to make life easy and comfortable for you. Your contemporary kitchen is fitted with a wide range of easy-to-use, appliances, including a Zanussi fan-assisted oven, four-ring hob and fridge/freezer. All appliances are A energy rated.

Mackintosh A

Spacious living areas

Light and roomy bedroom and living areas, featuring fitted carpets, pendant lighting, chrome sockets and switches, plus telephone and data sockets with optional connectivity to Sky and open fibre networks. Warm and welcoming, your living areas offer a quality and comfort that you'll love. Plus, there's plenty of in-home storage so you can maximise your living space

Hackbridge Flatbalcony

Private balcony

A spacious, private balcony with plenty of storage, so you can make the most of this outdoor space. It's the perfect place to relax outdoors and take in the views. Plus, all balconies are sheltered so you can enjoy your own outdoor space, whatever the weather!

Activities & events

Shutterstock 241683235

Our dedicated team at Button House organise a varied programme of activities and events each week, many of which are covered within your fee - so there's no extra cost.

Each week, you'll discover a range of exciting activities and events that you can get involved with. Here are just some of the activities on offer:

  • Fitness and wellbeing classes, including yoga and Pilates
  • Cookery classes
  • Cocktail masterclass
  • Digital club
  • A wide variety of trips, tours and excursions
  • Film and music club
  • ...and much more!

Lifestyle support

Young Girl Talking To Older Lady

At Button House, a range of lifestyle support services are available, including: 

  • Cleaning
    Vacuuming, dusting, cleaning and interior window cleaning.
  • Laundry
    Washing, drying and ironing laundry.
  • Dog walking
    Taking your dog for a walk as required, so you can enjoy time to yourself.
  • Pet sitting
    For cats, birds or fish that are accustomed to being left whilst you’re away.
  • Customer assistance
    Support with paying bills and household paperwork, plus IT support and advice.

Speak to a member of our team for further information and prices.

Book a viewing

To arrange a viewing or book a virtual appointment by video call, please complete the form below or contact our friendly team on 0208 773 2838. Our opening hours are Tuesday to Friday 10am-4pm, Saturday 10.30am-4pm, and Sunday to Monday by appointment.

Enter your number without any spaces
If you would like to book a viewing, please tell us your preferred date and time below. For virtual appointments, please also tell us which video calling app you would prefer to use (eg Zoom, Facetime, Skype, WhatsApp).
We'd love to keep in touch * By submitting this form, you agree to us contacting you. We’d also like to keep in touch by email and SMS with offers, information and to hear about your experience with us so far. We’ll keep your data safe, and you can withdraw your consent at any time.

For more information, please see our privacy policy.